2-к, Зубковой, 22 корп. 1 Показать на карте
Рязань
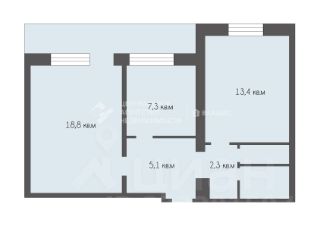
Арт. 135250172 Представляем идеальный вариант для вашей семьи уютная, светлая и просторная 2-комнатная квартира, полностью готовая к заселению!В квартире выполнен добротный ремонт, квартира мебелирована, мебель в хорошем состоянии. Большой шкаф-купе в коридоре вместит абсолютно все. Дополнительно есть гардеробная. Сам коридор просторный. ССанузел раздельный. В туалете есть водонагреватель, который позволит не зависеть от сезонных отключений воды. На кухне установлен функциональный гарнитур. В спальне - просторная лоджия, обшитая деревом, здесь Вы будете отдыхать после тяжелого рабочего дня, наслаждаясь свежим воздухом за чашкой кофе.Дом 1985 года постройки гарантирует надежность и комфорт. Толстые стены обеспечивают шумоизоляцию и комфортную температуру в квартире - зимой тут тепло, а летом - прохладно. Сама квартира находится в середине дома.Расположение мечта родителей! В шаговой доступности сразу две школы (51 и 68) и два детских сада (''Светлячок'', ''Теремок''). Дети всегда будут рядом и в безопасности! Для летних прогулок всего в пяти минутах облагороженный парк ''Черезовские пруды'', а для всех бытовых нужд ТЦ ''Алина'', ''Пятёрочка'', ''Магнит'', аптеки и пункты выдачи маркетплейсов всё буквально под рукой! Остановка транспорта также в пяти минутах. Квартира полностью готова к заселению! Не упустите свой шанс! Пишите в ЛС или звоните!
54 м2
5 / 5 этаж
Панель
- Показать контакты
- Добавить в избранное
54 м2
5 / 5 этаж
Панель
4 800 000
88 561 /м2
