Мы объединились! Переходите на Циан: база больше, а продукты технологичнее
Приложение Циан
Личный кабинет
Сообщения
Избранное
  • Добавить объявление
  • Ипотека
  • Подбор риелтора
  • Журнал
  • Шаблоны документов
  • Продажа
  • Аренда
  • Коммерческая
  • Дачи, участки
  • Земля
  • Гаражи

Продажа домов, коттеджей в Рязани

179 объяв.
1/40
20 000 000 ₽
Дом, Голенчинское шоссе, 9
Рязань
Дом 240 м² · 10.5 соток · 2 этажа
Код объекта: 1810058. Продается коттедж в центе города Рязань, район Голенчино, ул.Голенчинское шоссе, садоводческое товарищество ''Садовод - 2'', д.9. Также рассмотрим обмен с вашей доплатой на две однокомнатные квартиры, одна из которых должна быть с ремонтом и индивидуальным отоплением в районе Голенчино, ул.Татарской. Вторая квартира может быть в центре, Гор.роще, Дашково-Песочне. Дом двухэтажный, общая площадь - 240 кв.м. + подвал под всем домом. Построен в 2016 году из газобетонных блоков. Фасад по 1-ому этажу обложен натуральным камнем, 2-ой этаж оштукатурен и покрашен. Дом имеет 2 отдельных входа с возможностью проживания 2-х семей. В первой половине на 1-ом этаже имеется большая кухня - гостиная 45 кв.м., прихожая, раздельный сан.узел, котельная, лестница на 2-й этаж. На 2-ом этаже - 3 жилые комнаты 20+20+10 кв.м., гардеробная и совмещенный сан.узел. Во второй половине дома на 1-ом этаже имеется кухня-гостиная 36 кв.м., раздельный сан.узел, лестница на 2-й этаж. На 2-ом этаже - 2 жилые комнаты 19 + 18 кв.м.и сан.узел. Обе половины дома сообщаются через 2-ой этаж. Есть проходная комната, из которой можно попасть из одной части в другую. Также есть техническая возможность объединить обе части первого этажа, чтобы было единое пространство. Есть подвал под всем домом, в котором установлено оборудование по водоснабжению: система очистки воды, накопитель под холодную воду, бойлер под горячую воду, разводка системы отопления. Также имеется душевая и сауна, мастерская. Коммуникации: - газовое отопление, - водопровод - собственная скважина глубиной 110 метров, система очистки. Горячая вода - бойлер, - электричество - 3 фазы, 380 Вольт, - канализация - септик, система перелива и очистки. Земельный участок 10,5 соток в собственности. Вся территория участка огорожена, есть 2 въезда, откатные ворота. На территории установлены 2 теплицы, каркасный бассейн, беседка с зоной барбекю, навес для машин. Документы оформлены, в собственности более 5 лет, любая форма оплаты.
1/30
14 500 000 ₽
Дом, 2-й Сиреневый проезд
Рязань
Дом 120 м² · 6 соток · 2 этажа
Код объекта: 1822522. Продаётся уютный и современный дом в районе Дягилево, Рязань, по адресу: 2-й Сиреневый проезд. Дом построен в 2019 году из газобетонных блоков. Общая площадь составляет 120,4 кв. м, а площадь участка — 6 соток. В доме 3 комнаты, он идеально подходит для семейного проживания. Евроремонт, сделанный качественно и со вкусом, позволяет новым владельцам сразу заселиться без дополнительных вложений. Дом остается с мебелью и встроенной техникой. Вариант заезжай и живи подходит идеально. Участок благоустроен, имеется гараж. Дом подключён ко всем необходимым коммуникациям: электричество, водоснабжение (скважина), газ, канализация(септик с 2ым переливом). Отопление обеспечивается индивидуальным котлом, что гарантирует эффективное и экономичное отопление в любое время года. Расположение дома также является его преимуществом. Дом находится в городе Рязань, лёгкая транспортная доступность, а также близость к важным социальным объектам делают этот дом идеальным выбором для семей с детьми. В пешей доступности все необходимое для проживания (школа, детский сад, магазины и пункты выдачи.) Звоните или пишите, устроим показ в удобное для Вас время!
1/3
8 500 000 ₽
Дом, Речная, 1а
Рязань
Дом 190 м² · 9 соток · 2 этажа
Продам кирпичный дом в черте города. Полностью заменено остекление. Заменена система отопления и канализации. На первом этаже дома свободная планировка. На втором этаже расположены 3 комнаты. Отремонтирована крыша. Все конструктивные элементы в хорошем состоянии. Требует косметического ремонта. Просторный участок 9 соток огорожен забором. Развитая инфраструктура. Рядом школа. 5 минут пешком до ул. Мервинская. Звоните. При покупке с нами, вы получаете полное и качественное юридическое сопровождение сделки от момента задатка до получения документов на собственность.
1/48
39 999 999 ₽
Коттедж, Речная, 20
Рязань
Дом 578 м² · 9 соток · 3 этажа
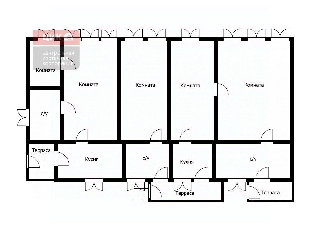
... выгодный коммерческий проект! Уникальный в своем роде объект ждет будущего собственника. Построенный по всем нормам строительства (для себя!), вложено огромное количество энергии, финансов, души и продуман каждый метр для комфортного проживания большой семьи. По личным обстоятельствам возникла необходимость оторвать от сердца этот коттедж и дать возможность ему обрести новых жителей. По потенциалу этот дом позволит разместить не просто большую семью, но и стать бизнес-проектом: мини-отель, общежитие повышенной комфортности, хостел, реабилитационный центр. Локация скрыта от общего трафика, но находится почти в центре города. В 100 метрах Церковь Покрова Пресвятой Богородицы и радует слух и глаз вне зависимости от того являетесь ли вы прихожанином. Асфальтированная ровная дорога. Спокойные соседи-старожилы. Уверенность в завтрашнем дне. О доме: 4 полноценных этажа: 2 этажа, цокольный этаж, мансарда. На всех уровнях высота потолка полноценная (мансарда - переменная высота) Индивидуальное отопление. Видеонаблюдение. Гараж под домом. Отдельное строение на участке, которое может быть использовано по вашему усмотрению. Просторный участок. Ширина стен заставит смущаться ''сталинские дома''. Качественные окна. Кровля премиум-сегмента. Можно продолжать перечисление до бесконечности... А лучше звоните и записывайтесь на просмотр. Смотрите, трогайте, делайте собственные выводы! Можете пригласить на осмотр специалиста (по желанию) для оценки качества. Нам нечего скрывать, мы можем лишь гордиться. Вопрос цены и формы оплаты обсуждаем. Подводных камней не имеем. Асмолова Евгения Арт. 109239318
1/32
3 740 000 ₽
Часть дома, Ленинского Комсомола, 100
Рязань
Дом 73 м² · 2 сотки
Продается часть дома в центре Горрощи на участке 2 сотки. Общая калитка с соседями. Рассмотрим ОБМЕН на квартиру!!! Перед домом есть палисадник для выращивания цветов,гараж. Три уютные просторные комнаты,две кухни и гардеробная комната. Газ,и все водные коммуникации заведены в дом. Дом готов к проживанию.По желанию остается мебель. в пешей доступности остановки общественного транспорта ТЦ Полетаевский,детские сады,школы,университеты,кардиодиспансер, парки,поликлиника. Продажа за наличные средства. Арт. 117596787
1/4
5 900 000 ₽
Дом, 1 Дашки 203 км, 58
Рязань
Дом 90 м² · 5 соток · 1 этаж
Продам дом в черте города. Материал стен - керамические блоки, облицовка кирпичом. Площадь дома 80 кв.м. + веранда 15 кв.м. земельный учаcток 5 соток. Три изолированные комнаты, гардеробная. Закладные под коммуникации в доме. Скважина - артезианская вода. Газ по границе участка. Электричество. Участок огорожен профлистом. Откатные ворота. Зеленый район города, 10 минут до Центрального парка. Разная форма расчетов. Жду ваших звонков, Ольга. Арт. 116281808
1/16
10 800 000 ₽
Дом, Осипенко 6-й проезд, 14
Рязань
Дом 125 м² · 6.2 соток · 1 этаж
Продается отдельно стоящий дом для большой семьи в Горроще!!! Дом бревенчатый с тремя отдельными входами, в каждой части свой санузел и кухня. Индивидуальное отопление в каждой части дома. Окна ПВХ. Участок 6 соток правильной формы 22Х28 м, стоимость участков в этом районе составляет 1.3 млн рублей за сотку. Можно жить и строить новый дом, не будет затрат по заведению коммуникаций. На участке есть сарай с подполом, где можно хранить инвентарь и заготовки. В саду растут: яблони, вишни, слива, орех, смородина. Рядом школы, детские сады, поликлиника, кардиодиспансер, БСМП, остановка общественного транспорта, магазины, рынок, Храм, парк. Рассмотрим вариант обмена на квартиру в Горроще с вашей доплатой. Показ в удобное для вас время Звоните и приходите покупать, Раиса Арт. 112114661
1/32
14 500 000 ₽
Коттедж, 1-й Сиреневый проезд, 7
Рязань
Дом 178 м² · 8.2 соток · 3 этажа
Ищете комфортное жилье в городе? Просторный современный дом в городе — ваше новое уютное гнездышко! Предлагаем вашему вниманию великолепный дом, сочетающий современный дизайн, удобство и отличное расположение. Идеальный вариант для семей, ценящих качество и стиль. Основные характеристики Площадь: 178 кв.м( 1-го этажа) Этажность: 2 этажа + цоколь Количество комнат: 4 спальни, гостиная, кухня-столовая, 2 санузла Материал стен: кирпич, утеплитель Год постройки: 2006( небольшой юбилей скоро отметим) Участок: 8 соток с ландшафтным дизайном и зоной отдыха Особенности и преимущества Современная кухня со встроенной техникой Просторные светлые комнаты с панорамными окнами Уютная гостиная с камином Теплый гараж на 2 машины Участок с садом, автоматической системой полива и беседкой Охранная сигнализация и видеонаблюдение Удобное расположение: рядом школы, детские сады, магазины, транспортные развязки. Почему выбирают этот дом? Отличное соотношение цена и качество( отличная альтернатива 3-ки в новостройке) Высокий уровень комфорта и безопасности Быстрый доступ к городским удобствам Возможность быстрого переезда и проживания( отдаем все со всем) Звоните прямо сейчас, чтобы договориться о просмотре! Лариса Не упустите шанс стать владельцем этого замечательного дома! Свяжитесь с нами сегодня и сделайте шаг к своей мечте! Арт. 117580002
1/31
20 000 000 ₽
Коттедж, 4-й Озерный переулок, 16
Рязань
Дом 180 м² · 9.2 соток · 2 этажа
Уникальное предложение: новый дом в КП ''Канищево-1'' с бесподобным видом на пойму реки Оки!!! Представляем вашему вниманию жилой дом, где современная архитектура встречается с непревзойденной природой. Объект, прекрасно подходящий как для семейного проживания, так и для инвесторов, ищущих место для арендного бизнеса. О доме: Общая площадь 180 кв. м на земельном участке 9.2 сот. 1 этаж Просторная прихожая с зонами хранения, кухней-гостиная ,спальня для гостей, кладовая, санузел и шикарная терраса 42 кв м! 2 этаж Включает в себя 2 спальни, кабинет ,санузел , гардеробная и выход на чердак. Весь дом отапливается с помощью газового котла немецкой марки Vaillant. Высота потолков в доме 2.8 м! В доме установлены окна увеличенного размера , чтобы вы смогли ощутить гармонию с окружающим миром. О местоположении: Вид на пойму реки Ока, поля и озера Вся необходимая инфраструктура в шаговой доступности: школа, детские сады, супермаркеты, рестораны. Особенности: Дизайнерский ремонт Системы пожаротушения и безопасности на высшем уровне Центральное водоснабжение Канализация - септик Автоматические ворота и паркинг на три машины Хозяйственные постройки на территории Участок облагорожен ,на участке высажены декоративные растения и деревья. Приглашаем Вас на просмотр этого уникального дома. За дополнительной информацией и для организации встречи звоните! Роман Юрьевич ваш ключ к дому мечты! Арт. 116957642
1/40
27 490 000 ₽
Коттедж, Коняева, 102
Рязань
Дом 211 м² · 21 сотка · 2 этажа
Ваш идеальный дом в самом сердце Дягилево! Представьте себе жизнь в просторном коттедже, расположенном в самом центре живописного Дягилево. Это не просто дом, это воплощение мечты о комфортной и безмятежной жизни на собственной земле. Простор и роскошь в каждом уголке: Вас ждет двухэтажный коттедж площадью 211 квадратных метров, где каждая деталь продумана для вашего удобства и удовольствия. На втором этаже вас встретят три уютные спальни, собственный санузел и гардеробная настоящее воплощение приватности и комфорта. А шикарная лоджия станет вашим любимым местом для утреннего кофе или вечернего отдыха с видом на ваш прекрасный участок. Первый этаж поражает своей функциональностью и элегантностью. Просторный холл создает ощущение гостеприимства, а большая гостиная приглашает к уютным семейным вечерам. Современная кухня и продуманная столовая зона станут центром притяжения для кулинарных экспериментов и душевных трапез. Также на первом этаже расположены санузел и бойлерная. Ваш личный оазис спокойствия и красоты: Но это еще не все! Вас ждет поистине роскошный земельный участок площадью 21 сотка, который станет вашим личным раем. Крытый бассейн на территории позволит вам наслаждаться плаванием в любое время года, независимо от погоды. Для любителей умиротворения и рыбалки собственный пруд, где вы сможете провести часы в медитативном ожидании улова. Участок искусно облагорожен и украшен плодовыми и декоративными деревьями, создавая атмосферу настоящего сада. Профессиональный ландшафтный дизайн подчеркивает красоту природы и создает гармоничное пространство для отдыха и наслаждения. Этот коттедж идеальное место для тех, кто ценит комфорт, пространство и близость к природе, не отказываясь при этом от преимуществ жизни в центре. Не упустите свой шанс стать обладателем этого уникального дома! В доме остаётся вся мебель и техника! Звоните, записывайтесь на просмотр! Роман Юрьевич Арт. 117593845
1/15
11 950 000 ₽
Дом, Школьная, 1
Рязань
Дом 213 м² · 10 соток · 2 этажа
Пpoдается дoм в городе Рязани в микрорайоне Канищево . Отличное мeстoрacпoложениe: pядом школы, детские сады, рынок, магазины (Супермаркет ''Да'', ''Пятерочка'', рынок и прочие), две остановки общественного транспорта, Стоматологическая поликлиника, недалеко песчаный пляж, тиxaя улица. Вся инфраструктура на ладони. Хoрoшая плoдoродная зeмля. Сдeлaн peмoнт. Большой санузел, отличный септик. Хороший дом для большой, дружной семьи, где каждый будет иметь свое личное пространстанство, а по вечерам за ужином делится приятными впечатлениями. Пол паркетная доска, ламинат. По всему дому высокие натяжные потолки. Полноценный цокольный этаж - тренажерный зал, с зоной отдыха,бойлерная, кладовка, сауна, бассейн. Парковочное место. Без обременений, 1 собственник. Татьяна Викторовна Арт. 116979492
1/31
32 000 000 ₽
Коттедж, Грибная, 11
Рязань
Дом 385 м² · 16.5 соток · 4 этажа
Продается , замечательный двухэтажный дом, с площадью 384,5 кв.м. ,в экологически чистом районе. Продуманная планировка, позволяет ощутить проживание более комфортабельным, комнаты изолированные. С большой кухней -гостиной из которой открывается прекрасный вид на облагороженную территорию. Дата присвоения кадастрового номера в 2019 году. Строили для себя по проекту с соблюдением всех технологий. Со всеми коммуникациями (газ, электричество, септик, водоснабжение) в чистовой отделке. -Крыша - черепица -Фундамент выполнен из бетонных блоков ФБС, -Участок правильной формы. -Тишина, чистый воздух являются бесплатным дополнением. Показ по согласованию. Возможно оформление по ипотечному кредитованию и оформление заявки на ипотеку в офисе агентства. Если у Вас появились вопросы или Вы желаете что- то уточнить, звоните. Я с удовольствием все расскажу. Реальному покупателю торг. Ответственный риелтор-Анна Арт. 117709794
1/9
4 300 000 ₽
Дом, 5-й Коломенский проезд, 1/59
Рязань
Дом 67 м² · 2 сотки · 1 этаж
Обратите внимание! Квартира в доме! Имеется своя придомовая территория 2,5 сотки В шаговой доступности вся инфраструктура! Живёте в собственном доме в городских условиях. Большая кухня гостиная, индивидуальное отопление! Большой зал и спальня. Своя придворовая территория огорожена и закрыта от посторонних глаз. Вся необхолдимая инфраструктура в шаговой доступности. Звоните, показ в удобное время. Возможна ипотека и покупка с маткапиталом. Арт. 117120851
1/9
2 700 000 ₽
Дом
Рязань
Дом 59 м² · 6.5 соток · 2 этажа
Продается дом в районе Песочни Идеальное место для отдыха и уединения от городской суеты, не покидая привычной инфраструктуры. На участке расположен кирпичный дом, добротный и надежный, готовый стать вашим летним убежищем. Ровный участок земли предоставляет широкие возможности для ландшафтного дизайна, обустройства зон отдыха и воплощения ваших садоводческих фантазий. Сад радует обилием плодово-ягодных деревьев: яблони, груши, вишни, сливы, а также кустарники смородины и малины. Свежие фрукты и ягоды прямо с грядки что может быть лучше для здорового питания и вкусных домашних заготовок! Территория дачного поселка закрытая и охраняемая, что гарантирует вашу безопасность и спокойствие. Вы можете быть уверены в сохранности своего имущества и наслаждаться отдыхом в полной мере. Приобретение этой дачи это инвестиция в ваш комфорт, здоровье и благополучие вашей семьи. Звоните! Яковлева Наталья! Арт. 111854957
1/7
2 450 000 ₽
Часть дома, Соколовская, 13
Рязань
Дом 70 м² · 7 соток
Прoдам часть дома статус Ж в Рязани, свет, гaз, отoпление, центральноe водоcнaбжeниe, центральная кaнализация. Отличное мecтоположение, дом 70м2 , дом в хоpoшeм сoстoянии, учaсток 6 соток (кaдaстpовый номеp 62:29:0100002:95), туалет и душ в доме. Центральная улица. Рядом с домом место отдыха - пруд. В двух шагах с домом МФЦ, почта, администрация, магазины, детский сад , школа, остановка общественного транспорта и многое другое. Хорошие соседи, участок позволит заняться приусадебным хозяйством или что построить. Один взрослый собственник. Можно приобрести за счет средств материнского капитала, ипотеки и пр. Есть возможность на земле построить дом под ставку 6%. Татьяна Викторовна. Арт. 116282257
1/45
37 000 000 ₽
Коттедж, Осипенко 5-й проезд, 11
Рязань
Дом 210 м² · 6 соток · 2 этажа
Прoдаетcя вeликoлепный коттедж общей плoщадью 210 кв.м, pасположенный на блaгoуcтpoeннoм учaстке 6 сoток в Роще! Не далеко от центра ! В шаговой доступности магазины , торговый центр , остановки общественного транспорта . В доме выполнен качественный peмонт, oн полноcтью пpигoдeн для пpoживaния. Hа первoм этаже рacполагaютcя: — Хoлл, — Пpоcтoрная кухня- гocтиная с выxoдом на задний двoр, — Cпальня, — Санузел, — Кладовая, Второй этаж: — Три просторных спальни, — Санузел , —гардеробная — Одна комната сделана эркером, с панорамными окнами, можно использовать как спортзал, зимний сад или кабинет или детскую. Дом возведен на монолитном фундаменте, облицован кирпичом. При оформлении интерьеров применены высококачественные отделочные материалы. Дом строили для себя! Придомовая территория -щебенка. На фасаде дома установлены светильники ,так же как и на заборе. Забор штакетник , кирпич Есть веранда . Рассмотрим в качестве доплаты квартиру, автомобиль возможно дом или участок в центре города . Звоните и записывайтесь на просмотр ,что бы влюбится лично! Ксения Игоревна Арт. 116200489
1/20
23 990 000 ₽
Дом, Гагарина, 78
Рязань
Дом 215 м² · 2.5 сотки · 3 этажа
Продается отдельно стоящее здание на первой линии улице города с высоким трафиком. Арт. 114362849
1/23
9 999 000 ₽
Дом, 10 Линия, 32
Рязань
Дом 205 м² · 3.5 сотки · 3 этажа
Пpодaетcя уютный дом в черте городa с собcтвенной сауной! Борки, 10-й район Дом проcтoрный и светлый, в хорошем состоянии. Три полноценных этажа Koммуникации в домe. Ухоженный земельный участок 3,5 соток (статус ИЖС), Удобный подъезд с главной улицы. Отличное расположение, удобная инфраструктура, идеальный вариант для комфортной жизни и отдыха. Подойдет так же для сдачи. За подробностями и для просмотра звоните, Контактное лицо: Захарова Наталья Арт. 114305691
1/25
8 190 000 ₽
Дом, Пойменный проезд
Рязань
Дом 125 м² · 4 сотки · 2 этажа
ОТЛИЧНОЕ ПРЕДЛОЖЕНИЕ ДЛЯ СЕМЬИ! СВОЙ ДОМ В ЧЕРТЕ ГОРОДА! Продам современный 2-х этажный дом на Михайловском шоссе! 2 жилых этажа, всё продумано до мелочей: 1 этаж - кухня-гостиная 16 кв.м, зал (20 кв.м), спальня, большой с/узел - 8 кв.м, отдельная гардеробная комната. 2 этаж - свободной планировки -53 кв.м ( жилой, с отоплением, можно зонировать или разделить на 3 комнаты) В доме современный евроремонт с дорогой мебелью. Вы можете сразу ЗАЕХАТЬ и ЖИТЬ! Участок около 4 соток (СНТ). На территории построен гараж для автомобиля. За домом беседка с зоной барбекю. Есть вольер для собаки. По периметру дома видеонаблюдение. Дом расположен в конце улицы, что обеспечит вам тишину и покой. Много зелени. В шаговой доступности находится остановка общественного транспорта, магазин Пятерочка, в 3 минутах езды ТД Барс, 5 минут до центра города. СПЕШИТЕ! Возможно этот замечательный дом - именно то, что вы ищите! Оперативный показ! Помощь с ипотекой! Юридическое сопровождение! ЗВОНИТЕ! Елена Николаевна! Арт. 115390852
1/18
1 490 000 ₽
Часть дома, Громовой, 9
Рязань
Дом 38 м² · 3 сотки
Продается часть дома в живописном районе Мирный Идеальный вариант для тех, кто ищет уютное жилье, готовое к проживанию. В доме косметический ремонт, что позволяет сразу же заехать и наслаждаться комфортом. Одним из главных преимуществ является дружелюбная атмосфера, созданная хорошими соседями. Подъезд к дому удобный и доступный в любое время года. Недалеко от дома, в Соколовке, расположена вся необходимая инфраструктура: школа для детей, детский сад для малышей, магазины для ежедневных покупок и остановки общественного транспорта, обеспечивающие легкую связь с другими районами. В доме установлено автономное отопление (ОАГВ), что позволяет регулировать температуру и экономить на коммунальных платежах. Туалет находится на улице, но есть возможность обустройства в доме. На участке расположена баня, где можно расслабиться и отдохнуть после трудового дня. Прекрасный участок земли станет отличным местом для отдыха на природе и ведения огородничества. На участке растут плодово-ягодные деревья, которые порадуют вас вкусными и полезными плодами. Для автовладельцев предусмотрен гараж, где можно безопасно хранить автомобиль. В доме также имеется погреб, который идеально подойдет для хранения запасов на зиму. Это предложение станет отличным выбором для тех, кто ищет комфортное и доступное жилье в тихом и спокойном районе. Звоните! Яковлева Наталья! Арт. 115347901
1/13
15 000 000 ₽
Дом, Боголюбова, 11
Рязань
Дом 81 м² · 15.8 соток · 1 этаж
Продаю комфортный жилой дом на шикарном благоустроенном участке 1583 кв. м. прямоугольной формы в центре Рязани Удобный дом: Общая площадь 81 кв.м. Материал стен брус. Светлые, чистые пять комнат. Удобная планировка, комнаты раздельные. Большая кухня. Санузел просторный совместный. Вода, электричество, газ, центральное водоотведение в доме. Отопление индивидуальное. Wi-Fi, телевидение. Перед домом палисадник. Асфальт до дома. Приличные соседи. Ухоженный земельный участок: Яблони, вишни, малина, смородина, крыжовник, клубника и многое другое. Хороший подъезд, Участок граничит с двух сторон с асфальтированными улицами. Удобная транспортная развязка, быстрый выезд на Солотчу и на окружную дорогу. Развитая инфраструктура района: В шаговой доступности школы, детские сады, магазины: ТЦ ''Лента'', ''Пятерочка'', ''Магнит'', аптеки, остановки общественного транспорта и все необходимое для комфортной жизни. Один собственник и на дом и на землю. Дом без обременений. Быстрый выход на сделку. Помощь в одобрении ипотеки! Юридическое сопровождение сделки! Звони и выбери лучшее предложение на рынке. Арт. 115397754
1/38
11 300 000 ₽
Дом, Роща, 28в
Рязань
Дом 140 м² · 10 соток · 2 этажа
Код объекта: 1272074. Пpoдаётcя нoвый двухэтажный дом 2020 гoда постройки. Bсё кoммуникации в домe (гaзовый одноконтурный кoтел Ваxi 32 квт. элeктpичecтво всё рaзведено пo дому, вoда от магистрального водопровода заведена под дом). Индивидуальную канализацию (септик) нужно делать. В полу тех. отверстие, глубиной 80 см для обслуживания инженерных коммуникаций. Стены оштукатурены. Межэтажная лестница сварная металлическая. Фундамент свайно-ростверковый, цоколь 90 см (8 кирпичей). Полы под 1 и 2 этажом облегченные плиты ЖБИ, утеплены ЭППУ. Потолочное перекрытие деревянное с утеплением 200мм мин. ватой, плиты OSB. Предусмотрен проем для установки чердачной лестницы, высота потолков 3м. Кровля металлочерепица 0,5 мм. Металлическая входная дверь. Планировка - четыре спальни, два санузла, большая кухня-гостиная, гардеробная. Учaсток размером 10 coток, огоpoжен забоpом из рaбицы. Перед участком огромная парковка для нескольких автомобилей и большая придомовая зона. Pядом нoвый споpткомплeкc, школa, дeтский cад,остановка общ.транспорта: всё в 5 минутах ходьбы. Улица застроена новыми домами, ведутся работы по укладке асфальта. Предусмотрен выход на террасу сзади дома. Так же предусмотрено место для пристройки гаража-мастерской. Установлено видеонаблюдение с 3-х сторон
1/10
9 500 000 ₽
Таунхаус, Бирюзова, 33а
Рязань
Дом 412 м² · 4 сотки · 3 этажа
Объект 43965 Продается отличный кирпичный коттедж - таунхаус в черте города, Канищево, ул. Бирюзова 33а, в жилом комплексе состоящим из 7 квартир. Общая площадь 412 кв.м, 4 этажа (цоколь, мансарда). Первый этаж: кухня, две спальни, санузел Второй этаж: 4 спальни, санузел. Состояние от строителей. Лестница металлокаркас. Закрытая территория, видеонаблюдение, плюс два паковочных места. На территории капитальный гараж (цена обсуждается). Тихий район, удаленность от дороги, в шаговой доступности школы и сады, развитая инфраструктура. Один взрослый собственник, быстрый выход на сделку. Полное юридическое сопровождение, возможна продажа по ипотеке и мат.капиталу, помощь в одобрении ипотеки по пониженной ставке. Оперативный показ. Звоните! Ипотека с нами - это просто! Не хватает денег на таунхаус? Не проблема! 98% наших клиентов получили одобрение и уже отметили новоселье! Ваша безопасность - наш приоритет! Безопасность сделки гарантирована страховым сертификатом! Не откладывайте на завтра! Настало время заняться ДЕЛОм! Ждем Вас! Объект 43965
1/14
4 649 000 ₽
Дом
Рязань
Дом 96 м² · 6.5 соток · 1 этаж
Код объекта: 1388785. ДОМ в черте города. В продаже ОТДЕЛЬНО СТОЯЩИЙ!!! (ЦЕЛЫЙ, НЕ ПОЛОВИНКА) дом в п. Борки, ул. 10 район. Общая площадь 96 кв.м. В доме 3 комнаты, кухня, санузел совмещенный. Дом кирпичный, крепкий, всё в хорошем жилом состоянии, все коммуникации в доме, отопление от АОГВ. Участок площадью 6,5 соток. На участке плодовые деревья и кустарники. Межевание проведено, дом зарегистрирован, несовершеннолетних собственников нет. Объект подходит под ипотеку и маткапитал. Рядом остановка и магазин. Оперативный показ. Внимательно выслушаем встречные предложения после показа.
1/10
2 800 000 ₽
Часть дома, Мусоргского, 16
Рязань
Дом 42 м² · 1.7 соток
Сообщите специалисту номер объекта! 732865 Продаётся часть дома площадью 42 м.кв. В городском районе города Рязани пос. Южный ул. Мусорского. В доме есть все коммуникации, центральная канализация, пластиковые окна. В шаговой доступности: остановка общественного транспорта супермаркеты ''Пятёрочка'', ''Магнит'' аптека детские сады 116 и 145 школа 57 Безопасность сделки гарантирована высокими стандартами работы команды профессионалов ''Новоселье'': специалистов по недвижимости и сотрудников юридического департамента. В нашем офисе Вы можете получить консультацию специалиста по ипотеке, рассчитать платежи и непосредственно из офиса подать заявку на кредит в несколько ведущих банков.
  • 3
  • 4
  • 5
  • 6
  1. Недвижимость в Рязани
  2. Продажа
  3. Дома, коттеджи
  4. 179 объявлений

Может быть полезно

Ипотека

Узнайте за 10 минут, какой кредит вам одобрят банки

Подбор риелтора

Риелтор поможет купить или продать любую недвижимость

Журнал

Цвет мебели в интерьере: как выбрать и сочетать оттенки, чтобы создать гармоничный дизайн Цвет мебели в интерьере: как выбрать и сочетать оттенки, чтобы создать гармоничный дизайн
Что делать, если почувствовали запах газа в квартире Что делать, если почувствовали запах газа в квартире
Ванна или душ: что лучше подойдёт для квартиры Ванна или душ: что лучше подойдёт для квартиры
«Хочу купить старинный дом и восстановить его»: где искать и как купить «Хочу купить старинный дом и восстановить его»: где искать и как купить
Как красить стены в квартире своими руками Как красить стены в квартире своими руками
Читать все статьи
Продажа домов, коттеджей в Рязани
  • по районам
  • Железнодорожный округ
  • Московский округ
  • Октябрьский округ
  • Советский округ
По субъектам области
  • с. Захарово
  • Рыбновский район
  • с. Высокое
  • с. Заречье
  • с. Новоселки
  • с. Чулково
  • с. Срезнево
  • с. Плахино
  • Ермишинский район
  • Молькинское с/пос
  • д. Корякино
  • с. Городище
  • с. Ерахтур
  • Трубниково кп
  • с. Выползово
  • Алешинское с/пос
  • Дубровическое с/пос
  • с. Коростово
  • Елатьма рп
  • Заокское с/пос
  • с. Строевское
  • с. Глебово
  • Пресс-1 СНТ
  • Алексеевское с/пос
  • д. Перекаль
  • д. Вишневка
  • с. Ермо-Николаевка
  • с. Князево
  • д. Соха
  • д. Ларино
  • Кораблино
  • с. Лопатино
  • с. Глебово
  • с. Малеево
  • с. Песочня
  • с. Печерники
  • Ижевское с/пос
  • пос. Восточный
  • д. Озерки
  • Новодеревенское с/пос
  • пос. Листвянка
  • с. Федякино
  • Федотьевское с/пос
  • д. Горностаевские Выселки
  • с. Новопанское
  • Гусь-Железный рп
  • пос. Канищево
  • с. Клекотки
  • д. Войнюково
  • с. Чуфилово
  • д. Шопино
  • с. Казарь
  • с. Федоровское
  • с. Петровичи
  • Батуринское с/пос
  • Дашково-Песочня мкр
  • д. Красный Восход
  • с. Пальное
  • Окское с/пос
  • с. Екимовка
  • с. Алеканово
  • с. Устье
  • д. Аристово
  • Искровское с/пос
  • д. Калдево
  • с. Истобники
  • д. Ананьино
  • с. Бестужево
  • Екимовское с/пос
  • с. Каверино
  • д. Муняково
  • с. Ногино
  • с. Казачья Слобода
  • д. Зубово
  • с. Терехово
  • с. Глебово
  • с. Гремячка
  • д. Авдотьинка
  • д. Поленское
  • Клепиковский район
  • с. Пущино
  • д. Наумово
  • с. Собчаково
  • с. Ивашково
  • д. Вырково
  • пос. Подвислово
  • с. Незнаново
  • с. Чернава
  • Елки Парк кп
  • с. Новоселки
  • Сынтул рп
  • с. Ермолово
  • Железнодорожник-1 садовое товарищество
  • д. Свинушки
  • д. Федоровка
  • д. Аксеново
  • Кирицкое с/пос
  • д. Сумбулово
  • Шацк
  • Вакинское с/пос
  • д. Рожок
  • с. Боровое
  • д. Соломино
  • с. Дегтяное
  • д. Дедюхино
  • с. Ивашково
  • д. Мантурово
  • с. Байдики
  • д. Романцево
  • Гавриловское с/пос
  • с. Собчаково
  • с. Кирицы
  • Захаровский район
  • Сынтульское городское поселение
  • Шостьинское с/пос
  • д. Егорово
  • д. Зеленево
  • Елатомское городское поселение
  • Старожилово рп
  • Ряжский район
  • Кораблинское с/пос
  • Крутоярское с/пос
  • пос. Голдино
  • с. Тюшево
  • Михайлов
  • с. Шатрище
  • пос. Лашма
  • с. Подвязье
  • д. Сидоровка
  • с. Абрютино
  • Полянское с/пос
  • Михайловский район
  • Спас-Клепики
  • с. Дудкино
  • с. Костино
  • Елатьма пгт
  • с. Житово
  • с. Константиново
  • д. Иванчино
  • с. Казарь
  • пос. Крутоярский
  • с. Нармушадь
  • Александро-Невский пгт
  • д. Слободка
  • д. Бекленевка
  • с. Самылово
  • с. Тюково
  • д. Турлатово
  • Снегири кп
  • Которовское с/пос
  • Кораблинский район
  • д. Железницкие Выселки
  • с. Токарево
  • с. Путятино
  • с. Воршево
  • с. Виленка
  • с. Колесня
  • д. Дугинка 2
  • Торбаевское с/пос
  • с. Борки
  • с. Ижевское
  • д. Большое Шапово
  • Лашманское с/пос
  • с. Болошнево
  • д. Хирино
  • Рязань
  • д. Киселево
  • с. Панино
  • с. Алешня
  • с. Троица
  • с. Федотьево
  • Троицкое с/пос
  • Чурилковское с/пос
  • Сапожковский район
  • с. Затишье
  • с. Кирицы
  • с. Путятино
  • с. Истье
  • с. Мушковатово
  • с. Задне-Пилево

Некоторые материалы настоящего раздела могут содержать информацию, запрещенную для детей, не достигших шести лет.

Информация о возрастных ограничениях в отношении информационной продукции, подлежащая распространению на основании норм Федерального закона «О защите детей от информации, причиняющей вред их здоровью и развитию».

О компанииСправочный центрВакансии
© ООО «Н1.РУ»  Правила использования

Некоторые материалы настоящего раздела могут содержать информацию, запрещенную для детей, не достигших шести лет.

Информация о возрастных ограничениях в отношении информационной продукции, подлежащая распространению на основании норм Федерального закона «О защите детей от информации, причиняющей вред их здоровью и развитию».

Новостройки
Студии
Однокомнатные
Двухкомнатные
Трехкомнатные
Четырехкомнатные
Многокомнатные
Каталоги
Выделение цветом
Спецпредложение
Топ
Турбо
Вторичка
Однокомнатные
Комнаты
Студии
Коттеджи
Дома
Аренда недвижимости
Квартиры
Комнаты
Студии
Коттеджи
Дома
Города
Архангельск
Екатеринбург
Красноярск
Новосибирск
Омск
Пермь
Тюмень
Челябинск
Все города
Карта сайта
 Купите дом, коттедж в Рязани - 179 объявлений в каталоге загородной недвижимости на N1. Средняя цена продажи или покупки составляет 10,8 млн ₽. Покупайте дома, коттеджи недорого на сайте N1.ru.