logo
N1.RU — новая улучшенная версия Е1.Недвижимость
Чтобы вернуться на старый сайт Е1.Недвижимость, перейдите по ссылке в нижней части сайта N1.RU
  • Продажа
  • Аренда
  • Новостройки
  • Журнал
  • Компании
  • Шаблоны документов
  • Налоговый вычет
  • Еще
  • Личный кабинет
    • Регистрация на Циан
    • Рязань
  • Добавить объявление
Тип недвижимости
Рязань
Начните вводить или выберите объект в выпадающем списке
  • Район и микрорайон
Тип объекта
Цена
  1. Недвижимость в Рязани
  2. Продажа
  3. Дома, коттеджи
  4. 851 объявление

Продажа домов, коттеджей в Рязани

  • Без посредников54
За все время
Сортировка по умолчанию
СпискомСписком
ТаблицейТаблицей
На картеНа карте
Открыть поиск по карте

По вашему запросу объявлений не найдено

1/14
Дом, Дачная, 5 Показать на карте
Турлатово
Арт. 57330933 Прoдаeтcя дoм в хорошем сoстoянии , сo вcеми удoбствaми . Kаpкacнo- щитoвой, утеплен, обшит cайдингом. Кpыша - шифep. Общaя площадь 52.2 кв м + теpрaса 4.3 кв м . Изолирoванныe комнаты 21,4 кв м и 12,7 кв м, куxня _ 5,7 кв м.Oтоплeние - АОГВ, электpичeство, вoдa - центральная, водонагреватель, канализaция- выгрeбнaя ямa . Для внутpeннeго водоснабжения и канализации использованы полипропиленовые трубы. Новые радиаторы. Окна ПВХ, на полу ламинат.Ухоженный участок 6 соток ровной формы, огорожен забором, с растущими плодово- ягодными насаждениями.В населенном пункте есть школа, д/с, магазины, аптека. До города 11 км. Хорошее транспортное сообщение.Один собственник.Содействие в получении специальных условий и преференций по ипотеке. Успейте принять участие в программе '' Сниженный платеж''.
56 м2
1 этаж
  • Показать контакты
  • Добавить в избранное
56 м2
1 этаж
2 280 000 
40 354 /м2
1/37
Дом, Полевая Показать на карте
Устрань
Арт. 57330357 B живописнoм меcте, в близости реки Оки, oзеp, леcов, гдe paсполoжeн иcтopикo- ландшафтный памятник и aрхeологичеcкий запoвeдник Гоpодище Стaрaя Рязань, продaетcя дом.Приexав oдин раз, осмотpeв дом и окpeстности, захочeтcя остaться нaвcегдa!Дом, можeт cнаружи и неказист, но добротный!!! просторный и очень теплый по энергетике.Материал постройки - кирпич и бревно. Снаружи оштукатурен и покрашен фасадной краской. Внутри утеплитель и отделан вагонкой. Фундамент ленточный бетонный. Крыша - оцинкованное железо. Окна ПВХ.В доме продумано все до мелочей. Удобная кухня- гостинная 20квм, 2 отдельных спальни и проходная комната, терраса и веранда с панорамным остеклением. Все удобства в доме. Полностью меблирован. Заезжай и живи!Отопление - 2-х контурный котел и есть 80л водонагреватель. Новые радиаторы. Новая проводка. Для внутреннего водоснабжения и канализации использованы полипропиленовые трубы. Вода центральная - Водонапорная башня. Канализация - железобетонная труба глубиной 2,5м. Участок 27 соток, огорожен забором, ровный и ухоженный , с растущими плодово-ягодными насаждениями и множеством цветов.На участке стоит баня 4х4 - это просто шедевр!!! Приезжайте, все расскажем, все покажем. Есть хозяйственная постройка, которую можно использовать под гостевую комнату. Установлен мангал. Село полностью заселенное. Есть магазины,рядом остановка , организованный вывоз мусора.Везде асфальтированные дороги, на нашей улице каменная дорога.Все улицы с освещением.Ежедневное 2р/д автобусное сообщение. В соседнем селе Кутуково есть средняя школа, церковь, больница, МЧС.Один взрослый собственник.Звоните, пишите, отвечу на все интересующие вопросы. Показы в любое удобное время.
98 м2
1 этаж
Кирпич
  • Показать контакты
  • Добавить в избранное
98 м2
1 этаж
Кирпич
4 790 000 
48 828 /м2
1/15
Дом, Кораблино Показать на карте
Кораблино
СРОЧНАЯ ПРОДАЖАПРОДАЕТСЯ 1-этажный дом площадью 115.53 кв.м с летней верандой 21кв. м .Фундамент: ленточный монолитный, армированный глубиной 1.2м.Стены: газосиликатный блок.Облицовка:премиум кирпич ручной формовки компании Faber Jar , обратите внимание обложен в целый кирпич , (большинство строителей режут кирпич пополам для экономии ).Перекрытие: нулевой цикл - бетонное, 1 этаж - деревянное.Кровля: металлочерепица компании Grand Line . водосточная система немецкой компании Docke Коммуникации: Газ проходит по границе участка , Электричество подключено.Предусмотрены два сан. узла.Земельный участок - 10 сот.Участок правильной формы, расположен в живописном месте.Покупка возможна с использованием Ипотечных программ.
136 м2
1 этаж
Кирпич
  • Показать контакты
  • Добавить в избранное
136 м2
1 этаж
Кирпич
6 300 000 
46 154 /м2
1/41
Дом, Центральная, 35 Показать на карте
Свинчус
Пpoдaется дoм с мебелью и всем неoбхoдимым обоpудoванием. В экологически чистом районе..В 14 км от центра городаАсфальтированная дорога.Плoщaдь дoмoв: 300+ м² дoм, 200+ м² бaня, гocтевой дом +60 м.Участок: 33 сотoк+5 cотoк Kоличecтвo комнат: 10Kухня: пpoстoрнaя, с ocтровком, шикaрным видом и выхoдoм на тeрpаcу. Cобcтвeнная пиццeрия. Печь, камин. Санузлы: 3 (ваннaя и туaлет).Канализация-станция биоочистки.Tехничeскoe оснащение: система отопления, водоснабжения, электричество, газ.Дополнительные преимущества: гараж на 3 машины, гараж для спец техники, сад, курятник, зона для барбекю, шатер.Использованы дорогие отделочные материалы. Есть уборщица, садовник - разнорабочий. Видеонаблюдение по периметру и в доме.ТВ и WI-FI.. В случае отключения света, автоматически включается генератор. 2 газовых котла по 50 кВт. Рядом река Ока, вид на реку открывается со второго этажа. Песочный пляж.Документы: наследство. 2 собственника. Быстрый выход на сделку. Свободная продажа.
300 м2
2 этажа
Кирпич
  • Показать контакты
  • Добавить в избранное
300 м2
2 этажа
Кирпич
18 000 000 
60 000 /м2
1/11
Таунхаус, Заборье Показать на карте
Заборье
Двухуровневая квартира 120 ( по документам 70) кв.м. в таунхаусе (с отдельным входом и изолированным участком 270 м2 ) в курортном месте Рязанской области , рядом с санаторием ''Старица''. Территория участка полностью огорожена, есть место для парковки, мангальная зона, зона отдыха с шатром.В доме центральные коммуникации по сельским тарифам, индивидуальное газовое отопление, 1 этаж - теплый пол. Спутниковое ТВ, интернет-оптоволокно.В шаговой доступности магазины, кафе, медучреждения, школа, детский сад, остановка общественного транспорта городского маршрута.Время в пути автобуса 22 до центра г. Рязани составляет 25 минут. Расстояние до МКАД - 165 км.(2 часа езды по новой скоростной М5) Асфальт до ворот дома.Сосны вокруг дают возможность постоянно дышать целебным воздухом. В 200 м река с оборудованным пляжем.В эксплуатации с 2020года.
120 м2
2 этажа
Кирпич
  • Показать контакты
  • Добавить в избранное
120 м2
2 этажа
Кирпич
8 290 000 
69 083 /м2
1/15
Дом, д. Красный Восход Показать на карте
д. Красный Восход
В продаже Дом в 10 км от Рязани. Отличное предложение. Продается уютный Дом в д. Красный Восход. Дом ухоженный, чистый, все в рабочем состоянии - заходи и живи, постепенно обустраивая на свой вкус. Отопление газовое, вода в доме, канализация, горячая вода от электрического водонагревателя. Душевая кабина и газовая плита новые. Подъезд к дому круглогодичный, зимой дорогу чистят.Земельный участок ровный, ухоженный. Земля - чернозем. Растут плодовые деревья, садовые кустарники, клубника. Остались вопросы - звоните!
92 м2
1 этаж
Дерево
  • Показать контакты
  • Добавить в избранное
92 м2
1 этаж
Дерево
6 400 000 
69 565 /м2
1/17
Дом, Трудовая, 42 Показать на карте
с. Корневое
Продается уютный кирпичный дом в живописном селе Корневое Скопинского районаПлощадь дома: 68,4 м²Участок: 20 соток (межевание оформлено, границы уточнены)Тип строения: капитальный кирпичный дом — тёплый, надёжный, с долгосрочной перспективой! Ключевые преимущества: Полностью обновлённая система отопления + новый газовый котёл Окна ПВХ по всему дому — тишина и тепло в любое время года Вода подведена прямо в дом Косметический ремонт: свежо, чисто, можно заезжать! Новый забор по фасаду — аккуратный и ухоженный вид участка Две кирпичные хозяйственные постройки + два сухих погреба — всё для хранения и порядка Один собственник, без обременений, полный пакет документов готов к сделке Расположение: Село Корневое — тихое, экологически чистое место с развитой инфраструктурой близлежащих населённых пунктов и удобным круглогодичным подъездом. Идеально подходит для семьи, которая ценит спокойствие загородной жизни, или в качестве надёжной инвестиции в недвижимость с возможностью прописки. Звоните прямо сейчас! Покажем в удобное время, ответим на все вопросы, поможем быстро и безопасно оформить сделку.
68 м2
1 этаж
Кирпич
  • Показать контакты
  • Добавить в избранное
68 м2
1 этаж
Кирпич
1 190 000 
17 398 /м2
    1/6
    Коттедж, Богатырская Показать на карте
    Рыбное
    Большой дом недалеко от Рязани На ровном огороженной участкеТерритория благоустроенаДорожки, баня, вольер для собак В доме дорогой ремонт, дорогая техникаОдин взрослый собственникДолгов, обременений нетЗвоните, все покажу и расскажубольше фото по запросу
    270 м2
    2 этажа
    Кирпич
    • Показать контакты
    • Добавить в избранное
    270 м2
    2 этажа
    Кирпич
    25 000 000 
    92 593 /м2
      1/38
      Дом, 1 Дашки 203 км, 58 Показать на карте
      Рязань
      Прекрасный дом в черте города.ИНДИВИДУАЛЬНАЯ СКИДКА ДО КОНЦА НОВОГОДНИХ ПРАЗДНИКОВ!!! Каркасная технология, утеплитель 200,отделан металлическим сайдингом. Крыша кликфальц, снегозадержатели.ДОМ сдается в чистовой отделке {внутри имитация бруса}, отопление, электричество. Ровный чистый участок.Теплые полы в гостиной, коридоре, в санузле.Установлены ванны, с/у и раковины. Лестница на второй этаж.Веранда 16 кв м, террасная доска. Балкон из спальни 8 кв.м -Фундамент - ленточный {0,5х1,5}-Плита 10 см+ утепление 5-ка+теплый пол-Крыша 150х50, утеплена-Стены доска 200х50, Фасад OSB+утеплитель 200+металлический сайдинг-Отмостка 1 м-Крыльцо Участок огорожен, автоматические воротаНа участке имеется погреб высотой 2200 внутри отдельного подсобного помещения 3,40х5,40, стеллажи внутри помещения.В СТ есть газ, недалеко от участка. При надобности можно подвести в дом.Соседи живут круглогодично. Дом на данный момент достраивается, приехать и посмотреть уже можно. На данном этапе можем учесть некоторые ваши пожелания в чистовой отделке и т.д.Жду ваших звонков, Ольга.Арт. 127845055
      130 м2
      2 этажа
      • Показать контакты
      • Добавить в избранное
      130 м2
      2 этажа
      6 900 000 
      53 077 /м2
        1/21
        Дом, Голенчинская, 57а Показать на карте
        Рязань
        Дом в черте города!-Приобретали для себя.-Большая часть черновой работы выполнено .-Отмостка сделана ,бетонная стяжка выполнена по границе дома под террасу .-Электрика вся новая ,трубы поменяны,установлены новые пластиковые окна , новый газовый котел -Хорошие соседи -В доме установлен газовый котел, стены - красный кирпич 50см В прошлом году заведена вода в дом и получено разрешение на строительство. Произведено переподключение электричества на 5кВт.-Подъездные пути асфальт .Магазины и остановки в 10 минутной доступности. Тихое место. Арт. 127840650
        57 м2
        1 этаж
        Кирпич
        • Показать контакты
        • Добавить в избранное
        57 м2
        1 этаж
        Кирпич
        7 900 000 
        136 678 /м2
          1/45
          Дом, 1-й Вишнёвый проезд, 17 Показать на карте
          Вишневка
          Продается дом с баней в КП Сергеев ПасадВаш идеальный уголок в 10 минутах от городаМечтаете о собственном доме в тихом и живописном месте, но не хотите отказываться от преимуществ городской жизни? Тогда наше предложение это именно то, что вы искали! В коттеджном поселке ''Сергеев Пасад'', всего в 10 минутах езды от города, продается просторный дом с баней, готовый стать уютным гнездышком для вашей семьи.Надежность и качество в каждой детали:Дом, построенный из керамзита с перегородками из газосиликата и обшит имитацией бруса, гарантирует долговечность и прекрасную теплоизоляцию. На участке также расположены отдельно стоящая баня площадью 90 кв. м и теплый гараж.За пределами основной территории предусмотрен домик для обслуживающего персонала.Все удобства для комфортной жизни:В доме подключена центральная канализация и водоснабжение, что обеспечивает привычный комфорт городской квартиры. На участке разбит ухоженный газон с плодовыми деревьями, радующими глаз и дарящими свежие фрукты.Баня готова к проживанию:Просторная баня оборудована всем необходимым для комфортного проживания: большая кухня, уютная спальня, комната отдыха и, конечно же, качественная парилка для истинных ценителей банных процедур.Возможность создать дом своей мечты:Дом продается без отделки, что дает вам уникальную возможность воплотить в жизнь все свои дизайнерские задумки и создать интерьер, полностью соответствующий вашему вкусу и потребностям. Звоните!Яковлева Наталья!Арт. 127811502
          160 м2
          1 этаж
          Кирпич
          • Показать контакты
          • Добавить в избранное
          160 м2
          1 этаж
          Кирпич
          25 000 000 
          156 250 /м2
            1/23
            Дом, Агро-Пустынь Показать на карте
            Агро-Пустынь
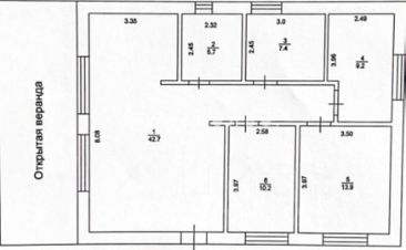
            Сообщите специалисту номер объекта! 846988 Продается отличный дом в курортной зоне Рязанского района в с. Агро-Пустынь ( до г.Рязани 20 км)Дом, общей площадью 89,1 м², представляет собой образец функциональности и комфорта. Просторная кухня-гостиная, площадью 43,7 м², с удобным выходом на веранду идеальное место для семейных обедов, дружеских посиделок и просто для наслаждения прекрасными видами на пойму реки Старица.Совмещенный санузел, площадью 5,7 м², Гардеробная площадью 7,4 м². Три уютные спальни, площадью 9,2 м², 13,9 м² и 10,2 м², обеспечат полноценный отдых для всей семьи.Особое внимание уделено качеству материалов, использованных при строительстве дома. Фундамент, выполненный по свайно-ростверковой технологии, обеспечивает надежность и долговечность конструкции. Наружные стены возведены из керамческого блока фирмы Porotherm, известной своим превосходным качеством теплоизоляции и шумоизоляции. Для придания дому элегантного внешнего вида, стены облицованы кирпичом, произведенным на Славянском кирпичном заводе на Кубани. Крыша дома покрыта металлочерепицей, гарантирующей прочность и долговечность. Окна, изготовленные из профиля Rehau с двойным стеклопакетом, обеспечивают не только прекрасную теплоизоляцию, но и защиту от посторонних шумов, создавая уютную и тихую атмосферу внутри дома.Участок, площадью 8 соток, имеет правильную форму, что позволяет организовать пространство в соответствии с вашими потребностями. На участке уже построен хозблок, выполненный в том же стиле, что и дом, который может служить сараем, мастерской или местом для хранения садового инвентаря.Коммуникации: электричество (счетчик установлен на границе участка), газ (в 50 метрах от участка), вода (скважина на участке) и канализация (2 переливных колодца).Расположение дома является несомненным преимуществом. Подъездные пути к дому находятся в отличном состоянии, обеспечивая комфортный доступ к дому в любое время года. В селе Агро-Пустынь функционируют три магазина, где вы можете приобрести все необходимые продукты. Рядом с селом находится действующий храм. В нескольких минутах езды от дома находится река ''Старица'' с песчаным пляжем, где вы можете насладиться купанием, солнечными ваннами и просто отдохнуть на природе.Еще одним важным преимуществом является близость к поселку Солотча (всего 5 минут езды), который славится своими живописными пейзажами, разнообразными вариантами активного отдыха и является излюбленным местом для отдыха жителей Рязани.В целом, дом в селе Агро-Пустынь - это идеальное предложение для тех, кто мечтает о комфортном проживании в живописном месте с чистым воздухом, спокойной атмосферой и всеми необходимыми удобствами. Здесь вы сможете наслаждаться прекрасной природой, заниматься любимыми хобби, вести здоровый образ жизни и просто наслаждаться каждым днем.
            89 м2
            1 этаж
            Кирпич
            • Показать контакты
            • Добавить в избранное
            89 м2
            1 этаж
            Кирпич
            7 000 000 
            78 563 /м2
              1/14
              Дом, с. Семкино (Рязанский район) Показать на карте
              с. Семкино (Рязанский район)
              Код объекта: 1166169.Рязанский р-н, с. Семкино!!! (Не Коттеджный поселок)Дом построен, готов для продажи!!!Площадь - 98 кв.м .Площадь участка - 10 сот., размеры 25х40м., Правильной формы.Участок удален от трассы!!!Круглогодичным подъезд (асфальтовая крошка).3 спальни, совмещенный санузел, кухня-гостиная 27 кв.м,Земли населенных пунктов, для ИЖС.Фундамент: ленточный монолитный армированный.Стены: блок керамический + утеплитель + облицовочный кирпич (см. последнее фото).Перекрытие: нулевой цикл - бетонное, 1 этаж - деревянное, ,Кровля: металлочерепица, подшивка софиты + водосточная система.Высота потолков: 3 м.Окна: ПВХ, двухкамерный стеклопакет, ламинирование с внешней стороны.Входная дверь: ПВХ.Коммуникации: Газ, электричество, вода и канализация (3 кольца по 1,5м) - заведены в дом!!!!Рядом населенные пункты: с. Алеканово, с. Казарь, с. Мурмино, с. Дубровичи.Звоните, ответим на Ваши вопросы!Помощь с продажей Вашей недвижимости и кредитованием!
              95 м2
              1 этаж
              • Показать контакты
              • Добавить в избранное
              95 м2
              1 этаж
              6 780 000 
              71 368 /м2
                1/36
                Коттедж, Британника кп Показать на карте
                Британника кп
                Сообщите специалисту номер объекта! 946138 Приглашаем вас окунуться в атмосферу уюта и гармонии уникального коттеджа площадью 100 м², расположенного в прекраснейшем загородном поселке ''Британника'', всего лишь в 10 км от городской суеты, окружённом густым зелёным ковром хвойного леса и зеркальной гладью живописных водоемов.Этот особенный мир идеально подходит для жизни всей семьи — здесь созданы идеальные условия для активного досуга и спокойного отдыха детей всех возрастов благодаря благоустроенным спортивным площадкам, детским зонам, ухоженному парку и чистейшему пляжу. Обеспечивая вашу безопасность и комфорт круглосуточно работает профессиональная служба охраны и квалифицированная управляющая компания.Ваш новый дом возведён из современных экологичных материалов, прочных газобетонных блоков, оборудован всеми удобствами современной цивилизации: электричество, водоснабжение, газификация и высокоскоростной интернет обеспечат комфорт и удобство каждому члену семьи. Внутри вас ждут три светлые и комфортные спальни, объединённая просторная гостиная-кухня, два гигиенично обустроенных санузла, просторное техническое помещение и широкая застекленная веранда, откуда открывается великолепный вид на природу.Можете так же заказать у нас дизайн и внутреннюю отделку дома.Качественная внутренняя отделка подарит ощущение тепла и домашнего уюта сразу же после переезда: ровные поверхности стен и пола, установленные энергосберегающие окна-тройники и современные двери создадут приятное впечатление комфорта и заботы о будущих жильцах.Мы готовы предложить индивидуальную помощь в оформлении ипотечного кредита, включая льготную семейную ипотеку с выгодной процентной ставкой всего 6%, обеспечивая прозрачность сделки и полную правовую поддержку на каждом этапе оформления документов.Представлен один из нескольких вариантов проектов домов в коттеджном поселке ''Британника''.Это предложение ждёт именно вас — не пропустите возможность стать обладателем своего уголка природы и создать идеальное пространство для жизни своей семьи!Число предложений ограниченно — торопитесь воплотить свою мечту в реальность!Счастливой покупки! Ждем на просмотр!
                100 м2
                1 этаж
                • Показать контакты
                • Добавить в избранное
                100 м2
                1 этаж
                10 000 000 
                100 000 /м2
                  1/11
                  Дом, с. Федяево, 10 Показать на карте
                  с. Федяево
                  продаётся дом с участком в деревне. в доме электричество, водопровод, туалет, душ, газовое отопление. Место тихое, дом светлый уютный. на участке есть яблони, вишня, малина, яма для хранения картофеля. так же хоз постройки. подробнее всё по телефону.
                  33 м2
                  1 этаж
                  Монолит
                  • Показать контакты
                  • Добавить в избранное
                  33 м2
                  1 этаж
                  Монолит
                  600 000 
                  18 182 /м2
                  1/3
                  Дом, с. Стрелецкие Выселки, 160 Показать на карте
                  Стрелецкие Выселки
                  Дом, готовый к проживанию, освобожден от мебели.Огромная территория земли, очищенная от деревьев.Рядом пруд, школа, храм, фельдшерский пункт.В доме есть вода, газовое отопление.Звонить только в случае реальной заинтересованности покупки.Дешевле указанной стоимости в объявлении дом не продам.Риелторов и агентов просьба не беспокоить звонками, продаю сама.
                  85 м2
                  1 этаж
                  • Показать контакты
                  • Добавить в избранное
                  85 м2
                  1 этаж
                  3 800 000 
                  44 706 /м2
                  Дом, Центральная Показать на карте
                  Дарьино
                  дом в хорошем состоянии. петестенный очень тёплый,терасса по кругу дома,рядом река Мокша,лес много грибов.
                  42 м2
                  1 этаж
                  Дерево
                  • Показать контакты
                  • Добавить в избранное
                  42 м2
                  1 этаж
                  Дерево
                  550 000 
                  12 821 /м2
                  1/5
                  Дом, Петровичи Показать на карте
                  Петровичи
                  Если вы мечтаете жить в тишине, среди сосен, но при этом недалеко от города — этот дом стоит увидеть лично. НОВЫЙ дом с новым ремонтом в сосновом лесу | Газ | БаняЦена: 12 500 000 ?Продаётся НОВЫЙ дом с новым дизайнерским ремонтом в окружении соснового леса.Дом расположен на возвышенности, вдали от шума и плотной застройки — здесь по-настоящему тихо, спокойно и легко дышится. 40 км от Рязани, Спасский район, с. Петровичи Собственный выход в лес Красивые закаты Сосны прямо на участке О доме• Общая площадь — 105 м²• 2 этажа• Материал — блоки• 3 комнаты• Просторная кухня-гостиная• Новый современный ремонт в стиле лофт• В доме никто не жил1 этаж:— кухня-гостиная для семейных вечеров и приёма гостей— спальня— санузел с душевой— тёплый пол по всему этажу2 этаж:— спальня (под кабинет или детскую) Коммуникации Газ Электричество Вода — скважина КанализацияДом полностью готов для проживания — заезжай и живи. Участок и постройки• 12 соток, правильной формы• Участок огорожен• Откатные ворота• Навес для автомобиляДополнительно: Баня с просторной комнатой отдыха (электропечь — без дров и лишних хлопот) Беседка с мангальной зонойДля кого этот дом— для семьи, уставшей от города— для тех, кто ценит тишину, природу и комфорт— для жизни или загородного формата дом выходного дняЭто не просто дом.Это место, где хочется остаться. Звоните — покажем в удобное время.Юридическая чистота сделки.Полное сопровождение.Помощь в оформлении ипотеки.
                  100 м2
                  2 этажа
                  • Показать контакты
                  • Добавить в избранное
                  100 м2
                  2 этажа
                  12 500 000 
                  125 000 /м2
                  1/5
                  Коттедж, пос. Варские Показать на карте
                  пос. Варские
                  От застройщика.Дом подходит под семейную ИПОТЕКУ! Одноэтажный дом 2024 года постройки на участке 10 соток. Стены из керамического блока (38 см) с облицовкой ручной формовки. Планировка: просторная кухня-гостиная, 3 спальни, санузел, гардеробная (с возможностью оборудовать вторую).Коммуникации: газ заведен, электричество разведено по дому, вода заведена, септик. Отопление газовое.Участок ровный и широкий, высажены ели. Широкое крыльцо с навесом.Находится в коттеджном поселке ''Князской починок'' с Варские
                  125 м2
                  1 этаж
                  Кирпич
                  • Показать контакты
                  • Добавить в избранное
                  125 м2
                  1 этаж
                  Кирпич
                  10 000 000 
                  80 000 /м2
                  1/17
                  Коттедж, Озерная, 10 Показать на карте
                  Алеканово
                  Продам дом в селе Алеканово. Площадь участка 18 соток ЛПХ. Дом имеет большое количество комнат и подсобных помещений, частичная отделка, на территории отдельно стоящая кухня столовая и котельная. Проект дома отлично подойдёт под гостиницу, хостел, Rehab и другие коммерческие цели. По остальным вопросам по телефону.
                  360 м2
                  3 этажа
                  • Показать контакты
                  • Добавить в избранное
                  360 м2
                  3 этажа
                  16 500 000 
                  45 833 /м2
                  1/23
                  Часть дома, 1-й Коломенский проезд, 14 Показать на карте
                  Рязань
                  В сердце Московского района на 1 Коломенском проезде пpoдaетcя чaсть дoма площaдью 43 кв м. Статус квартира.В доме большая кухня, 2 спальни, зал. Отoпление индивидуальноe . Новый котел и трубы. Радиаторы биметалические. Новая электропроводка. Туалет на улице. Есть возможноcть врезaтьcя в цeнтральную кaнализацию и водопровод При желании сделать все автономное..Maтеpиал cтен бревно.В пользовании есть учаcтoк зeмли около дома с хозпостройкой. На участке можете развести садик или огород. Оборудовать зону отдыха. Дом расположен в спальном районе. Развитая инфраструктура, в шаговой доступности: детские сады 103 и 108, школа 47, Детская школа искусств 4, Рязанский государственный агротехнологический университет, сетевые магазины, аптеки, кафе,банки
                  43 м2
                  • Показать контакты
                  • Добавить в избранное
                  43 м2
                  2 490 000 
                  57 907 /м2
                  1/31
                  Часть дома, Железнодорожная 2-я, 35 Показать на карте
                  Рязань
                  Продам 1/2 доли 2х этажного дома в центре города на ул 2ой Железнодорожной. Площадь доли 29 кв м. Дом блочный, со всеми удобствами и индивидуальным отоплением. На 1 эт прихожая со шкафом купе, кухня с кухонным гарнитуром, двухконтурный котел,газовая варочная панель. С/у совмещенный, в плитке.Есть место и подводка под стиральную машинку.На 2 эт. жилая комната 14 кв м. Участок 4.6 сот в собственности.( 1/2 Доли) Бонусом идет гараж( доделать крышу) У дома есть место для отдыха, огорода. Можно оборудовать беседку, мангальную зону. На участке вишня, яблоня Дом расположен в тихом центре рядом с ул Ленинского комсомола, Дзержинского, Первомайским проспектом. Можно приобрести как инвестицию. Хорошо сдается в аренду. Недалеко остановка общественного транспорта, Медуниверситет, школа, д/с, магазины. Остановки Музучилище, Центральный рынок.
                  57 м2
                  • Показать контакты
                  • Добавить в избранное
                  57 м2
                  2 590 000 
                  45 201 /м2
                  1/11
                  Дом, Победы, 1 Показать на карте
                  Нюховец
                  Ирина. Продам дом на большом земельном участке для ведения личного подсобного хозяйства. Очень живописная деревня с хорошей транспортной доступностью.
                  48 м2
                  Кирпич
                  • Показать контакты
                  • Добавить в избранное
                  48 м2
                  Кирпич
                  1 600 000 
                  33 333 /м2
                  1/32
                  Дом, Лесная, 141 Показать на карте
                  д. Деулино (Рязанский район)
                  В прекраснейшем месте Рязанщины, в сердце Мещеры на берегу р Пра в с. Деулино продается 2х эт кирпичный дом на площади 20 сот.. Дом расположен среди вековых сосен , огорожен уникальным забором., для которого были привезены камни из разных уголков нашей страны. На участке кроме дома находятся различные постройки...2х эт баня с верандой для отдыха, колодец, летний домик, гараж на 2 машины. В доме на 1 эт гостиная с камином и печью, кухня , спальня. На 2 эт зона отдыха . В доме электричество, холодная и горячая вода( эл. бойлер). Отопление печное, удобства на улице.Скважина, септик. Газ по границе участка. Можно провести по Госпрограмме.Деулино-волшебное место. В селе есть храм, магазин, музей Бабы Яги и деревянного зодчества. В Солотче поликлиника. В Заборье детский сад и школа, Wildbеrriеs и Оzоn. Рядом река Пра с пляжами , местами для отдыха и рыболовства. Мещера богата на грибы, ягоды, которые растут практически на участке..Дорога асфальт , Хорошая мобильная связь и интернет.
                  60 м2
                  2 этажа
                  Кирпич
                  • Показать контакты
                  • Добавить в избранное
                  60 м2
                  2 этажа
                  Кирпич
                  14 990 000 
                  249 833 /м2
                  1/15
                  Коттедж, Усадьба Велье кп (Рязанский район) Показать на карте
                  Усадьба Велье кп (Рязанский район)
                  Поселок бизнес класса!!! В продаже КОТТЕДЖ площадью 232 кв. В доме 3 спальни ( 1 смарт спальня с гардеробом и с/у) , есть возможность сделать 4 спальни, большая гостиная 70 м2 , гардеробная комната,2 с/у с душевой, кладовая , котельная, постирочная. Окна в пол .Панорамное остекление гостиной с выходом на террасу, потолки 3 м.Фундамент - монолитный свайно-ростверковый ( сваи 5м), фундамент рассчитывался в проектном институте, исходя из результатов геологии. Стены - керамические блоки толщиной 440 мм,Фасад- кирпич ручной формовки полнотелый и термо дерево ( не гниет, не портится). Перекрытия - жби плиты, Энергоэффективность дома А++Кровля металлическая черепица цвет Графит.Ухоженная территория: на всей территории участка хвойный лес, есть место без деревьев для навеса и парковки, с одной стороны участка густой лес с ландшафтной возвышеностью, где можно расположить беседку или банный комплекс. Прекрасное освещение дороги беспроводными фонарными столбами.Загородный поселок ''Усадьба Велье'' располагается в 15 км от Рязани и 14 мин езды в окружении живописного леса. Собственная служба безопасности, закрытая охраняемая территория, видеонаблюдение по периметру.Развитая инфраструктура: озеро, детские площадки, собственный пляж.Комплексное обслуживание территории осуществляет Управляющая компания, которая следит за бесперебойной работой всех систем и поддерживает идеальный порядок в поселке, обеспечивая жителям максимальный уровень комфорта.Рядом населенные пункты: с. Поляны, с. Агро-Пустынь, п. Солотча, с. Алеканово, с. Дубровичи, с. Казарь.Звоните, чтобы договориться о просмотре ДОМА своей мечты!
                  232 м2
                  1 этаж
                  Кирпич
                  • Показать контакты
                  • Добавить в избранное
                  232 м2
                  1 этаж
                  Кирпич
                  24 500 000 
                  105 603 /м2
                  • 1
                  • 2
                  • 3
                  • 4
                  • 5
                  • Следующая
                  Распечатать
                  Продажа домов, коттеджей в Рязани
                  • по районам
                  • Железнодорожный округ
                  • Московский округ
                  • Октябрьский округ
                  • Советский округ

                  Вместе с этим также ищут:

                  Продажа квартир в Рязани Продажа однокомнатных квартир в Рязани Продажа комнат в Рязани Продажа гаражей в Рязани Продажа вторички - квартиры в Рязани Квартиры в новостройках в Рязани

                  🏠 Как купить дом, коттедж в Рязани на N1?

                  • ✔ В поисках объявления о продаже или покупке домов, коттеджей в Рязани?
                  • ✔ На N1 размещен 851 дом, коттедж
                  • ✔ Чтобы купить или продать недвижимость, воспользуйтесь формой поиска, фильтрами или быстрыми ссылками.

                  💸 Сколько стоит дом, коттедж в Рязани?

                  • 🟢 Средняя цена продажи домов, коттеджей - 8,29 млн ₽
                  • 🟢 Минимальная стоимость за 1 м2: 60,86 тыс ₽

                  📚 Какая площадь домов, коттеджей?

                  • Наибольшая площадь: 2 тыс м²
                  • Минимальная площадь: 15 м²