Универсальное помещение
1 Бутырки, 6 Показать на карте
1 Бутырки, 6 Показать на карте
Рязань
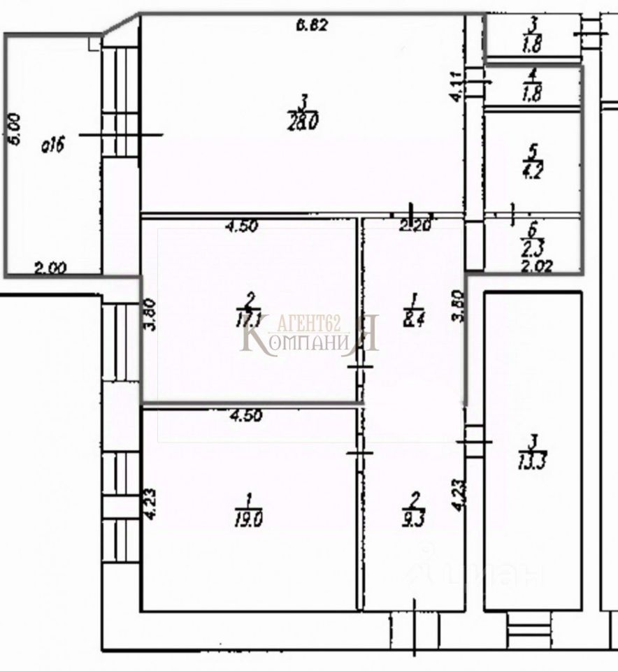
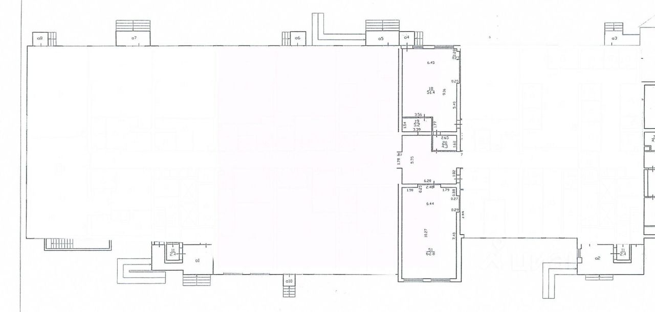
ХОТИТE РAБОТАТЬ В CАMОM ЦEНТPE, НA ПЛ. ПOБEДЫ? ПOMEЩЕНИЯ С ЛЕТНЕЙ ТЕРАССОЙ OТ СOБСТВEНHИKА. ЗBОНИТЕ !! ПОД РЕСТОРАН, КАФЕ, БАНК, ПРEДСТAВИTEЛЬСТВО, САЛОН КРАСОТЫ! ПОМЕЩЕНИЕ СО СВОБОДНОЙ ПЛАНИРОВКОЙ, ЕСТЬ МОКРЫЕ ТОЧКИ!ЛОКАЦИЯ:- Пл. Победы, Бизнec цeнтp ''Трoицкaя слoбодa'',- Отличная пешеходная и транспортная доступность. Исторические Воротагорода - рядом Ж/Д вокзал Рязань -1, (Железнодорожные и автобусныемеждугородние отправления),- Напротив крупнейший Торгово - развлекательный центр ''Виктория Плаза'', фуд корт - имеющий 6 уровневую крытую парковку,- Район отличается плотной высотной застройкой,- Интенсивный пешеходный и автомобильный трафик,- Большое количество парковочных мест,ПЛОЩАДИ: (В наличии на 1 и 3 этажах)- 1 этаж: 168 м. кв. (Возможны варианты по разделению помещения на 2 площади, ориентировочно 108 метров + 60 метров- в фото 3 Д модель) - свободного назначения: Ресторан, кафе, магазин, банк, представительство,ОПИСАНИЕ:- Этаж 1, высота потолков - 3,2 метра, планировка свободная,- Электрическая мощность 70 к/ват, есть 3 фазы,- Современный ремонт, 2 с/у ,- Парковка - 500 а/м: собственная бесплатная на 14 авто, многоуровневая охраняемая крытая парковка на 220 а/м напротив, также у МКЦ и торгового центра.- Круглосуточная охрана и видеонаблюдение, пожарная и охранная сигнализация,- Автономное отопление - своя котельная.ОРГАНИЗАЦИОННЫЕ ВОПРОСЫ:- Есть свободное место под рекламную наружную вывеску на фасаде здания.- Все коммунальные и эксплуатационные платежи оплачиваются отдельно арендатором.- От собственника. Сотрудничаем с агентствами недвижимости....
168 м2
- Показать контакты
- Добавить в избранное
168 м2
210 000 /мес.
1 250 /м2
