Если цена в объявлении изменится, мы сразу сообщим вам об этом на электронную почту.
Нажимая «Подписаться», вы соглашаетесь с правилами.
продам дом, д. Дубняки (Рязанский район)7 150 000 ₽
3 дек 2024
Дата публикации объявления
Обн. 18 мая
Дата обновления объявления
8
Количество просмотров (+ просмотры за сегодня)
58 367 ₽/м²
Чистая продажа
Термин "Чистая продажа" означает, что в квартире никто не прописан или
есть куда выписаться и вывезти вещи. Это лучший вариант для покупателя.
Вероятность срыва сделки минимальна.
Этажей1
Площадь участка12,6 соток
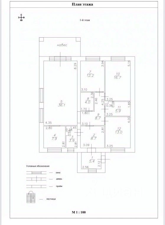
Общая площадь122,5 м2
Материал домакирпич
Предлагается к продаже современный дом в посёлке Дубняки. Дом спроектирован с максимально комфортным расположением пространства и в тоже время позволит распределить помещения по Вашим предпочтениям. Зонирование пространства в доме по эскизам заказчика, входит в стоимость. Дом выполнен из качественных материалов. Материал стен: газобетонный блок+ облицовка кирпичом (баварская кладка). Кровля: металлочерепица (цвет графит). Подшивка карнизного свеса софитами (цвет графит). Окна: ПВХ с ламинацией (цвет графит) и качественной фурнитурой. Стяжка: черновая (с выходами канализации, в соответствии с пожеланиями заказчика), что позволит произвести , при необходимости, монтаж тёплого пола по помещениям и проложить дополнительные коммуникации.
Предлагается к продаже современный дом в посёлке Дубняки. Дом спроектирован с максимально комфортным расположением пространства и в тоже время позволит распределить помещения по Вашим предпочтениям. Зонирование пространства в доме по эскизам заказчика, входит в стоимость. Дом выполнен из качественных материалов. Материал стен: газобетонный блок+ облицовка кирпичом (баварская кладка). Кровля: металлочерепица (цвет графит). Подшивка карнизного свеса софитами (цвет графит). Окна: ПВХ с ламинацией (цвет графит) и качественной фурнитурой. Стяжка: черновая (с выходами канализации, в соответствии с пожеланиями заказчика), что позволит произвести , при необходимости, монтаж тёплого пола по помещениям и проложить дополнительные коммуникации. Утепление межэтажного пространства 200 мм. Дом соответствует всем основным современным тенденциям. Просторная кухня-гостиная с панорамным выходом на террасу. Участок широкий, правильной формы. Расстояние до города 15 минут, что обеспечит максимально быструю доступностью в городскую среду. Дом расположен в живописном месте, в непосредственной близости от парк- отель История. Бесплатное одобрение ипотеки и полное сопровождение по покупке. Возможность покупки по семейной программе под 6%. Отвечу на все интересующие вопросы. Показ в удобное для Вас время.