СРОЧНАЯ ПРОДАЖА!!!!
Продается помещение свободного назначения.
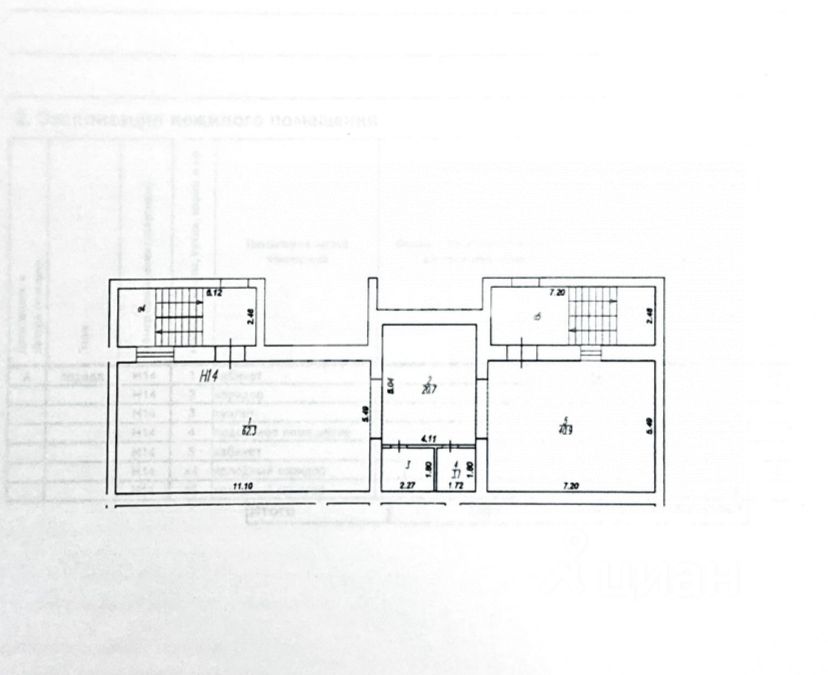
Цокольный этаж, встроенно-пристроенное помещение свободной планировки, высокие потолки, косметический ремонт, пожарная и охранная сигнализация, газовое отопление (свой котел), 2 санузла, отдельные два входа. Возможно поделить помещение на две части для разных арендаторов. Высокий пеший и автомобильный трафик, место под световую вывеску.
Помещение идеально подходит для: ветаптека, продажи зоотоваров так как в соседнем помещении с 1 сентября 2025 г открылась ветклиника или под офис, салона красоты, торговли, Пункта Выдачи интернет заказов, медицинского кабинета, оказания услуг населению, склада или тихого чистого производства.
Контактное лицо: РОМАН
Арт. 111263181















