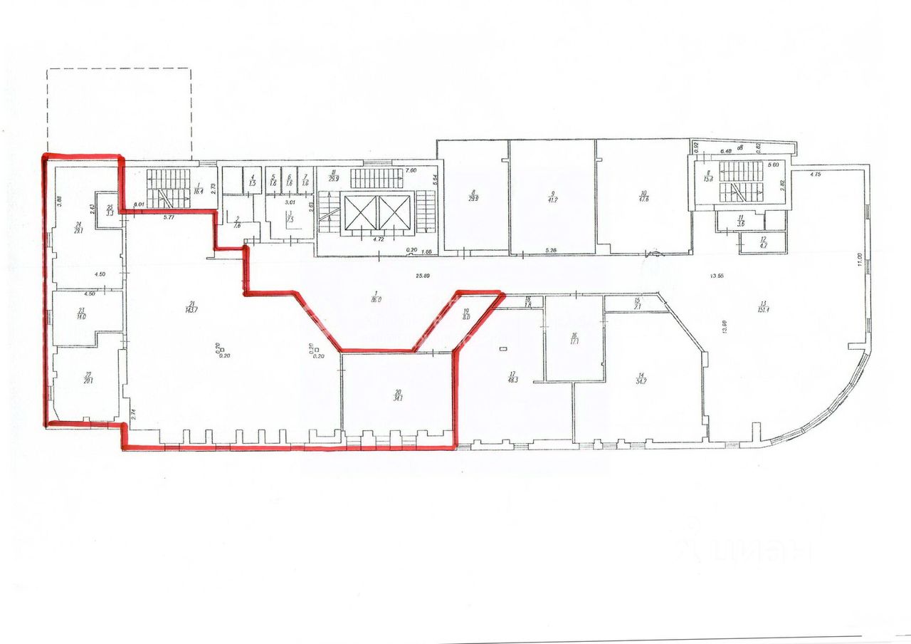
Код объекта: 1784166.
Сдается современный офис в центре города!
Помещение расположено в современном БЦ в центре города Рязани.
Офис оборудован центральной системой кондиционирования и вентиляции.
Сделан качественный дизайнерский ремонт. Есть общий зал и отдельные кабинеты.
В Бизнес центре располагаются два ресторана. Напротив гостиница ''Амакс''.
Рядом со зданием городская парковка на 50 машиномест.
Также свободная парковка на 20 мест перед зданием!














