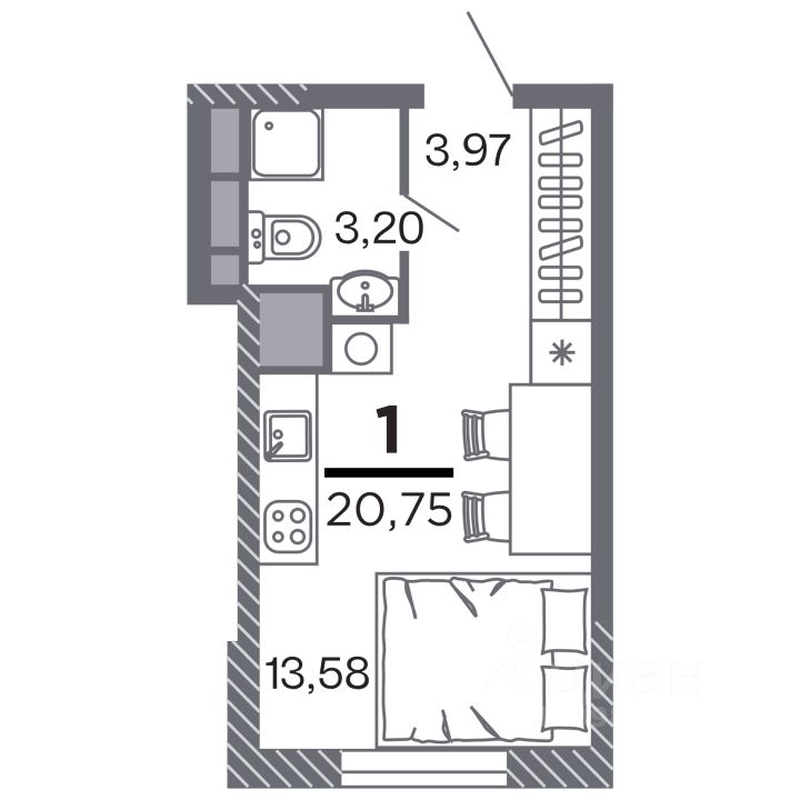
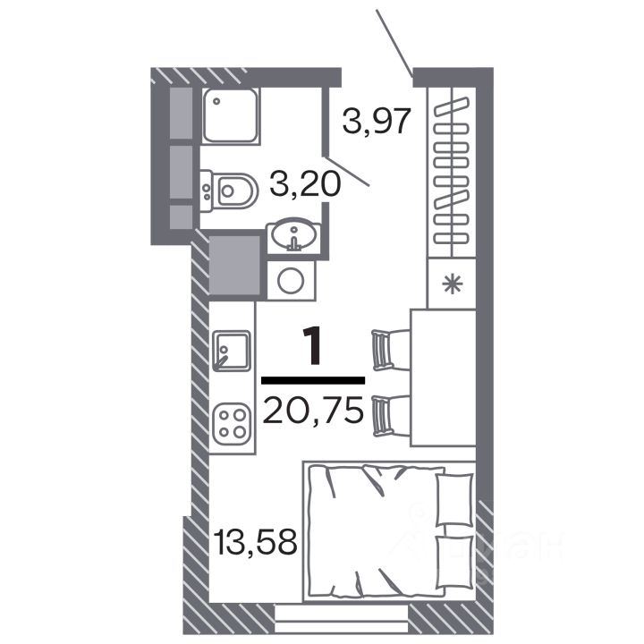
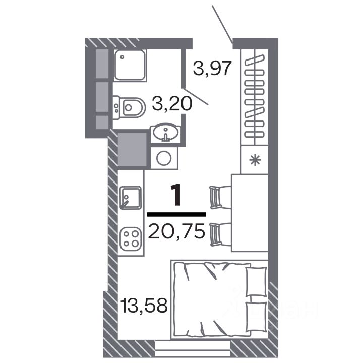
Продаётся 1-комнатная квартира в строящемся доме (Корпус 1), срок сдачи: IV-кв. 2028, общей площадью 20.75 кв.м., на 12 этаже. Новый жилой комплекс ''по ул.Быстрецкая'' от застройщика ''Северная Компания'' расположен по адресу Россия, Рязань, Быстрецкая улица.