Код объекта: 2006506.
Сдаётся в аренду кабинет в нежилом офисном здании Дзержинского 14А.
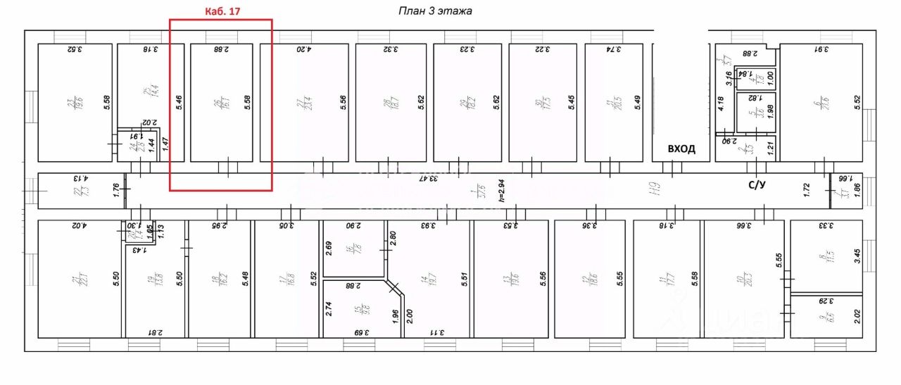
Расположен на третьем этаже. Общая площадь 16,1 кв.м. Ремонт, планировка свободная, высота потолка 2,9 м. Сан. узел на каждом этаже раздельный, автономное отопление. В стоимость аренды входит стоимость коммунальных услуг. Есть офисная мебель.
К зданию возможен подъезд со стороны улицы Дзержинского и Высоковольтной, есть парковка.
Возможные назначения: офис, сфера услуг, обучение и другие.








