1-к, Черновицкая Показать на карте
Рязань
- электропроводка на медном кабеле 220 V с установкой электрического щита на лестничной площадке и распределительного щита в квартире,- штукатурка кирпичных стен, кроме стен лоджий, откосов дверных и оконных проемов, ниш прохождения стояков водопровода и канализации, стены из пазогребневых плит (ПГП) и участки монолитных конструкций не штукатурятся,- стяжка пола,- шумоизоляция пола,- система отопления и горячего водоснабжения от крышной котельной с установкой прибора учета расхода тепла,- установлены приборы (радиаторы)отопления,- установлена силовая электрическая розетка для самостоятельной установки Участником электрической плиты,- смонтированы внутриквартирные стояки холодного, горячего водоснабжения и водоотведения (канализация) с установкой приборов учета. Разводка труб водоснабжения и водоотведения (канализация) до сантехнических приборов не производится, сантехнические приборы: унитаз, ванна, мойка, раковина- не устанавливаются,- установлена электрическая розетка для подключения электрического полотенцесушителя.. Электрический полотенцесушитель не устанавливается,- оконные проемы без выхода на лоджии остеклены ПВХ-профилем с отливом без подоконников, оконные проемы с выходом на лоджии остеклены ПВХ-профилем, без отлива без подоконника, лоджии остеклены, москитные сетки не предусмотрены, места запенивания монтажной пеной и укрывания гидроизоляционным герметиком не штукатурятся,- установлена входная металлическая дверь,- установлена трубка домофона, обеспечен доступ для подключения к телевизионному вещанию, интернету и телефонной линии.
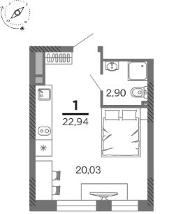
26 м2
17 / 23 этаж
Кирпич - монолит
- Показать контакты
- Добавить в избранное
26 м2
17 / 23 этаж
Кирпич - монолит
3 012 975
114 344 /м2
Новостройка,
I-2027
I-2027
