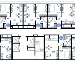
3-к, Льговская, 8 Показать на карте
Рязань
- электропроводка на негорючем медном кабеле 220 V с установкой электрического щита с электронными приборами учета на лестничной площадке и распределительного щита в квартире,- штукатурка кирпичных стен, кроме откосов дверных и оконных проемов, ниш прохождения стояков водопровода и канализации, экрана ограждений лоджий, - стяжка пола,- шумоизоляция пола,- индивидуальная (поквартирная) система отопления и горячего водоснабжения (газовый котел, газовый счетчик, элементы дымоходов, шаровые краны, разводка полиэтиленовой трубой, приборы отопления),- смонтирована система ''теплый пол'' в санузле и ванной комнате, в коридоре у входной двери,- смонтированы внутриквартирные стояки холодного водоснабжения (с установкой приборов учета) и водоотведения (канализация). Разводка труб водоснабжения и водоотведения (канализация) до сантехнических приборов не производится, сантехнические приборы: унитаз, ванна, мойка, раковина и полотенцесушка не устанавливаются,- вентиляционный приточный клапан (ВПК),- оконные проемы без выхода на лоджию остеклены ПВХ-профилем с отливом и подоконником, оконные проемы с выходом на лоджию остеклены ПВХ-профилем без отлива, лоджии остеклены ПВХ профилем без установки подоконника, москитные сетки не предусмотрены, места запенивания монтажной пеной и укрывания гидроизоляционным герметиком не штукатурятся, - установлена входная металлическая дверь,- установлен домофон,- обеспечен доступ для подключения к телевизионному вещанию, интернету, телефонной линии (точка подключения-щит слаботочного оборудования, расположенный на лестничной площадке).
83 м2
25 / 26 этаж
Кирпич - монолит
- Показать контакты
- Добавить в избранное
83 м2
25 / 26 этаж
Кирпич - монолит
9 842 420
117 662 /м2
Новостройка,
I-2026
I-2026
