2-к, Ленинского Комсомола, 77 Показать на карте
Рязань
- электропроводка на медном кабеле 220 V с установкой электрического щита на лестничной площадке и распределительного щита в квартире,- штукатурка кирпичных стен кроме экрана ограждений лоджий, откосов дверных и оконных проемов, ниш прохождения стояков водопровода и канализации, стены из пазогребневых силикатных плит и участки монолитных конструкций, не штукатурятся,- стяжка пола, кроме пола лоджий,- шумоизоляция пола,- система отопления и горячего водоснабжения от крышной котельной с установкой приборов отопления,- установлен приточный клапан инфильтрационный вентиляционный (КИВ),- смонтированы внутриквартирные стояки водоснабжения и водоотведения (канализация) с установкой приборов учета. Разводка труб водоснабжения и водоотведения (канализация) до сантехнических приборов не производится, сантехнические приборы: унитаз, ванна, мойка, раковина и полотенцесушитель - не устанавливаются,- установлена силовая электрическая розетка для самостоятельной установки Участником электрической плиты,- оконные проемы без выхода на лоджии остеклены ПВХ-профилем с отливом без подоконника, оконные проемы с выходом на лоджии остеклены ПВХ-профилем, без отлива и подоконника, лоджии остеклены ПВХ профилем, москитные сетки не предусмотрены, места запенивания монтажной пеной и укрывания гидроизоляционным герметиком не штукатурятся,- установлена входная металлическая дверь,- установлена домофонная трубка, обеспечен доступ для подключения к телевизионному вещанию, интернету и телефонной линии.
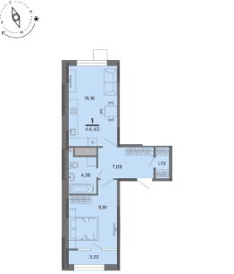
61 м2
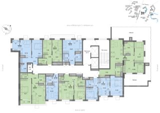
18 / 25 этаж
Кирпич - монолит
- Показать контакты
- Добавить в избранное
61 м2
18 / 25 этаж
Кирпич - монолит
8 794 800
143 776 /м2
Новостройка,
IV-2027
IV-2027
