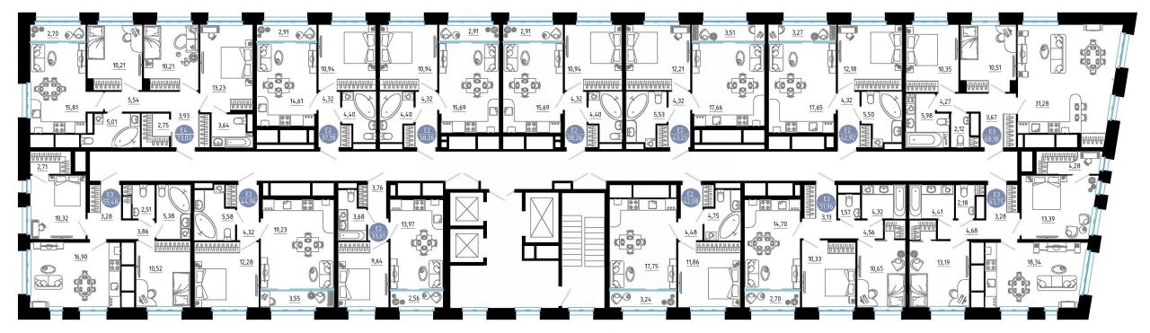
2-к квартира Показать на карте
Рязань
- электропроводка на медном кабеле 220 V с установкой электрического щита на лестничной площадке и распределительного щита в квартире,- штукатурка кирпичных стен кроме откосов дверных и оконных проемов, ниш прохождения стояков водопровода и канализации, стены из пазогребневых силикатных плит и участки монолитных конструкций, не штукатурятся,- стяжка пола,- шумоизоляция пола,- система отопления и горячего водоснабжения от крышной котельной с установкой прибора учета расхода тепла,- установлены приборы (радиаторы)отопления,- установлена силовая электрическая розетка для самостоятельной установки Участником электрической плиты,- смонтированы внутриквартирные стояки водоотведения (канализация), Разводка труб водоотведения (канализация) до сантехнических приборов не производится, сантехнические приборы: унитаз, ванна, мойка, раковина- не устанавливаются,- стояки холодного и горячего водоснабжения с приборами учета, приборы учета тепла, расположены в коммуникационных шахтах,- установлена электрическая розетка для подключения электрического полотенцесушителя. Полотенцесушитель не устанавливается,- оконные проемы без выхода на лоджии остеклены ПВХ-профилем с отливом без подоконников, оконные проемы с выходом на лоджии остеклены ПВХ-профилем, без отлива без подоконника, лоджии остеклены, москитные сетки не предусмотрены, места запенивания монтажной пеной и укрывания гидроизоляционным герметиком не штукатурятся,- установлена входная металлическая дверь,- установлен домофон, обеспечен доступ для подключения к телевизионному вещанию, интернету и телефонной линии.
52 м2
17 / 22 этаж
Кирпич - монолит
- Показать контакты
- Добавить в избранное
52 м2
17 / 22 этаж
Кирпич - монолит
7 119 490
136 729 /м2
Новостройка,
IV-2028
IV-2028
