2-к, Чкалова Показать на карте
Рязань
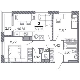
- электропроводка на медном кабеле 220 V с установкой электрического щита на лестничной площадке и распределительного щита в квартире,- штукатурка кирпичных стен, кроме стен лоджий, откосов дверных и оконных проемов, ниш прохождения стояков водопровода и канализации. Участки монолитных конструкций не штукатурятся,- стяжка пола,- шумоизоляция пола,- система отопления и горячего водоснабжения от крышной котельной с установкой прибора учета расхода тепла,- установлены приборы (радиаторы)отопления,- установлена силовая электрическая розетка для самостоятельной установки Участником электрической плиты,- смонтированы внутриквартирные стояки водоотведения (канализация), точки подключения холодного и горячего водоснабжения от коллекторной разводки (коллектор на лестничной площадке) с установкой приборов учета. Разводка труб водоснабжения и водоотведения (канализация) до сантехнических приборов не производится, сантехнические приборы: унитаз, ванна, мойка, раковина- не устанавливаются,- установлена электрическая розетка для подключения полотенцесушителя. Полотенцесушитель не устанавливается,- оконные проемы без выхода на лоджии остеклены ПВХ-профилем с отливом без подоконников, оконные проемы с выходом на лоджии остеклены ПВХ-профилем, без отлива без подоконника, лоджии остеклены, москитные сетки не предусмотрены, места запенивания монтажной пеной и укрывания гидроизоляционным герметиком не штукатурятся,- установлена входная металлическая дверь,- установлен домофон.
54 м2
4 / 25 этаж
Кирпич - монолит
- Показать контакты
- Добавить в избранное
54 м2
4 / 25 этаж
Кирпич - монолит
7 161 600
130 973 /м2
Новостройка,
IV-2029
IV-2029
